
















AÑO: 2018.
UBICACIÓN: Salta 2919, Rosario (Arg.)
MEMORIA DESCRIPTIVA
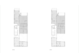
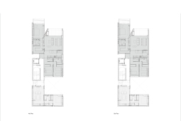
El proyecto se encuentra ubicado en Pichincha, un barrio cercano al Área Central de la ciudad, tradicionalmente residencial, sobre un corredor urbano que admite una altura máxima de 19.95m. Aprovechando que la fragmentación de los lotes vecinos hacia calle Riccheri difícilmente puedan albergar un edificio en el futuro, se propone un receso de la mitad de masa edilicia sobre la fachada, que de este modo amplifica hacia el Este el frente del proyecto, dotándolo de una condición de quasi-esquina. Dicha operación genera a su vez una independencia entre los balcones dando privacidad tanto entre distintas unidades y entre distintos ámbitos de la misma unidad. Asimismo, los balcones se tornan interdependientes a partir del intertrabado estructural.
En el fondo del lote la masa edilicia se organiza en torno a un patio que permite proteger la orientación sur y orientar hacia el norte y hacia al este, obteniendo visuales sobre los lotes de edificaciones bajas, hacia calle Riccheri. El intertrabado estructural se propaga por las medianeras e invade el patio interno, utilizando al hormigón armado como material que define la expresividad del proyecto.
El contacto con el espacio público se resuelve a través de una planta baja completamente liberada de programas duros, ocupada en su totalidad por cocheras y un hall abierto, sin límites físicos, lo cual despega al edificio del suelo. En la azotea, se colocan los espacios comunes, con vista panorámica hacia el barrio y el resto de la ciudad.