












AÑO: 2019 - 2022.
UBICACIÓN: Moreno 65 Bis, Rosario (Arg.)
MEMORIA DESCRIPTIVA
El proyecto se encuentra ubicado en el Área Central a metros del Parque de las Colectividades, eslabón del sistema de parques costeros al Río Paraná de la ciudad de Rosario. El lote de 6,90m de ancho y 23 de profundidad, es sensiblemente menor al promedio de la ciudad, haciendo que la ubicación del núcleo de circulación vertical sea clave para potenciar las posibilidades del terreno. El mismo se ubica en el centro de la masa edilicia, produciendo unidades quasi-simétricas, desplazado levemente hacia el norte, permitiendo el único ingreso vehicular posible debido a la presencia de un árbol de gran porte en la vía pública.
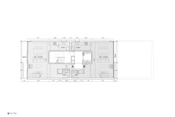
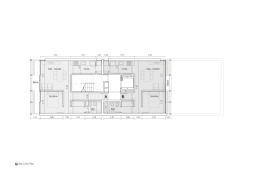
El proyecto se trabaja a partir de una grilla tridimensional, la cual conforma la estructura portante, como así también, establece la organización de franjas programática y define en las fachadas, la expresión formal del edificio. El edificio se encuentra apoyado sobre su medianera sur, sobre una edificación vecina. La medianera norte, en cambio, da a un pasillo de ingreso a lotes en centro de manzana, por lo cual la misma se trabaja como una tercer fachada.
La estructura se trabaja con la lógica de centro (el núcleo), perímetro (la grilla), dejando plantas libres y flexibles desde lo programático: ofreciendo de este modo oficinas o departamentos de 1dormitorio (semipiso) o 2 dormitorios (piso exclusivo), como así también unidades dúplex con terraza exclusiva en la azotea, en continuación con la lógica de investigación sostenida por el estudio, de proponer diversas configuraciones tipológicas como respuesta a la diversificación del habitar contemporáneo.
El resultado formal que caracteriza al edificio es una grilla irregular, afectada por las diferentes tipologías que conviven en el mismo.