









AÑO: 2019 - 2023.
UBICACIÓN: Salta 1250, Rosario (Arg.)
MEMORIA DESCRIPTIVA
El proyecto se encuentra ubicado en uno de los sectores más preciados de la ciudad, con cercanía al sistema de parques de la costa, al río y a distancia caminable de Boulevard Oroño y del área central. El terreno presenta la particularidad de ser lindero hacia el norte con la Escuela de Educación Media 431 General José de San Martín. Una vez superada su altura, el contrafrente tiene vista al Parque España y al Río Paraná.
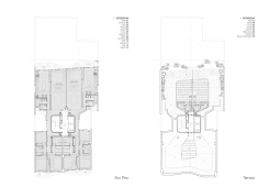
De allí surge la decisión de ubicar el núcleo vertical en el centro del lote, permitiendo acomodar semipisos espejados, maximizando de este modo la cantidad de unidades con vista al río. Se trabaja con una tipología de unidades de 3 dormitorios de metraje generoso, acorde a la zona de caracterizada impronta residencial familiar. La introducción de patios intermedios, dota a las unidades de una doble circulación cruzada. Estos patios actúan como fuelles que deslindan el sector social (ubicado en relación al río), y el sector privado (ubicado en relación a calle Salta).
La estrategia que define la forma del edificio es un tejido entrelazado de hormigón que se cierra al sur, donde se encuentra la calle y los dormitorios, brindando intimidad al conjunto. Por el contrario, se desenlaza al norte, reafirmando la mejor orientación y las visuales al río Paraná desde los espacios sociales. El lenguaje entrelazado lo moldea todo, envolviendo la masa edilicia en su totalidad y definiendo la imagen del edificio en relación a la dinámica de la ciudad contemporánea.